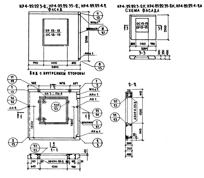
НР4-29.29.3-2
Характеристики изделия:
| Параметр | Значение | 
|---|---|
| Длина | 2895 мм | 
| Ширина | 300 мм | 
| Высота | 2900 мм | 
| Масса | 2560 кг | 
| Нормативный документ | Серия 1.132-1 | 
Цена:
Рассчитать стоимостьНР4-29.29.3-2 Наружная стеновая панель рядовая по Серии 1.132-1.
| Параметр | Значение | 
|---|---|
| Длина | 2895 мм | 
| Ширина | 300 мм | 
| Высота | 2900 мм | 
| Масса | 2560 кг | 
| Нормативный документ | Серия 1.132-1 | 
НР4-29.29.3-2 Наружная стеновая панель рядовая по Серии 1.132-1.